EHPAD et logements Noisy-le-Grand (93)

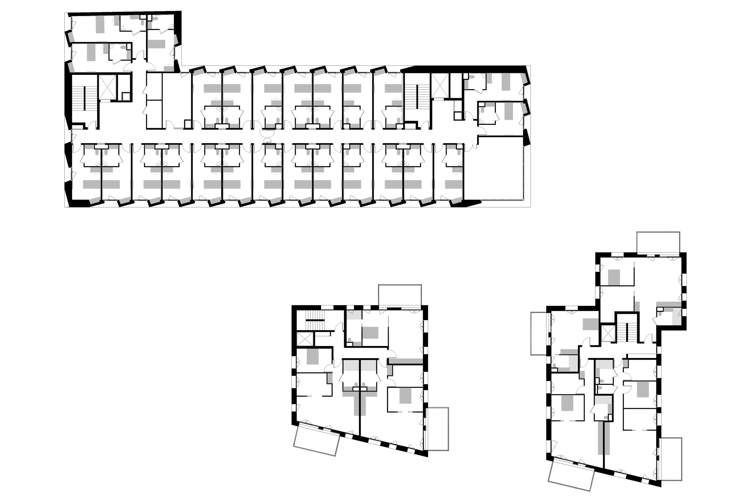
EHPAD de 96 lits comprenant une unité de vie protégée de 10 lits - 26 logements Date : Concours non retenu 2023 Coût/Surface : 13,8 M€HT / 7910 m² SDP Mission : Concours Maître d'ouvrage : IMMOBLEU

Ce programme s’inscrit pleinement dans les préoccupations actuelles de notre agence.

Nous souhaitons concevoir une architecture simple, d’une grande rigueur constructive qui se traduirait par des  bâtiments exemplaires en terme de qualité d’usage et de développement durable.

Le projet s’intègre dans le futur quartier des Bas-Heurts à Noisy-Le-Grand qui s’organise le long d’un parc linéaire Nord-Sud à forte intensité urbaine avec ses nombreuses promenades, ses espaces récréatifs, ses équipements sportifs et ses places offerts aux futurs habitants.

Le projet est en relation forte avec cet axe majeur aussi appelé « la Promenade des Jardins ». Il s’intègre dans l’aménagement urbain en participant à la fabrication d’un front bâti poreux le long de cette promenade.

Plusieurs principes d’aménagement ont été développés :

L’implantation urbaine des immeubles permettent des vues diagonales, des profondeurs de champs et un éloignement de la ligne d’horizon vers le paysage alentour.

 L’EHPAD, situé en retrait de la voie nouvelle et de la Promenade Des Jardins, est révélé à travers les percées visuelles organisées par les jardins. Celles-ci se prolongent aussi à travers les espaces de vie du rez-de-chaussée de l’EHPAD, mettant en connexion les différents jardins.

Devant la crèche et l’EHPAD, la place qui a fonction d’espace de rencontres pour habitants, parents et enfants, permet de s’attarder un peu, d’échanger et de jouir du plein air.

La mise en relation entre les trois bâtiments se distingue autant par les matériaux que par les couleurs de façade. Ce traitement non uniforme confère une échelle plus intermédiaire au sein de l’ilot.

Enfin la couleur offre un point de repère dans l’espace. Par exemple, le plot A identifié par sa brique moirée rose-rouge vient marquer l’angle de l’ilot le long de la Promenade des Jardins.

Les jardins sont largement plantés afin de réduire au maximum l’artificialisation des sols de la parcelle.

Cette continuité paysagère permet également une continuité écologique par la diversification des plantes endogènes et une gestion raisonnée des eaux pluviales.

Les cheminements intérieurs de la parcelle sont connectés avec le réseau piéton urbain. Ils sont conçus pour une invitation à la déambulation : le cheminement paysager est non rectiligne  en relation avec les jardins intérieurs.