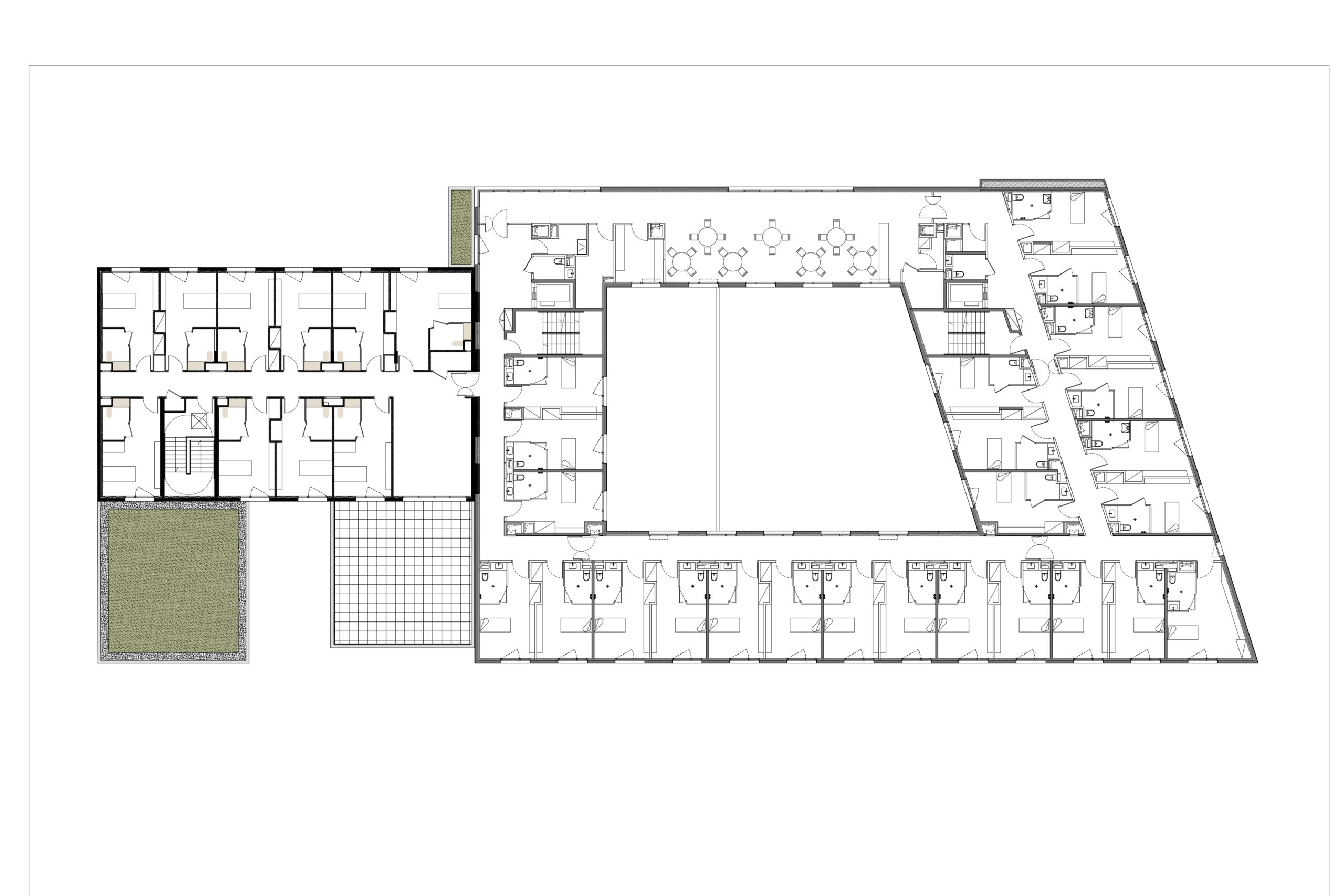
EHPAD Montmagny (95)
Date : PC - 2026
Mission : Conception - Exécution
Maître d'ouvrage : Espace Loisir Concepts





