Logements Evry (91) – Decauville

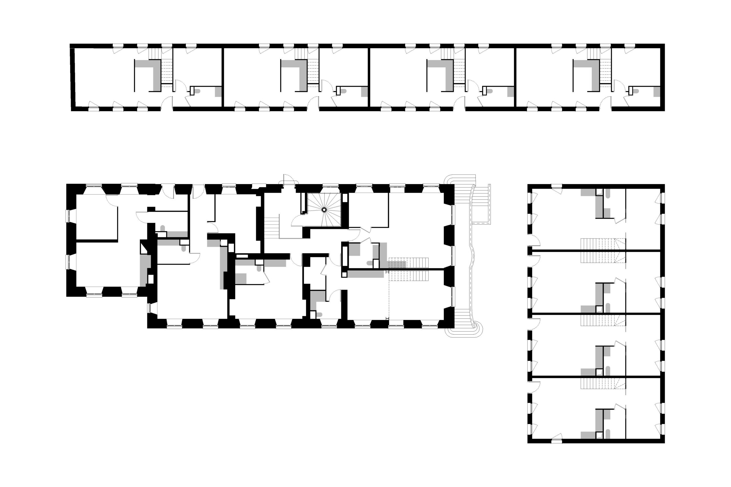
Restructuration d'un immeuble en 14 logements et création de 14 maisons de ville Date : chantier en cours - livraison en 2024 Coût/Surface : 3 110 000 €HT / 1545m² SDP dont 782m² SDP créées Mission : Conception - Exécution Maître d'ouvrage : Babel Immobilier BET : BET Poureau

Le maître d’ouvrage entend restructurer un immeuble (à l’heure actuelle sans affectation) en logements et créer autour des maisons de villes.

Le projet comportera 20 logements répartis de la manière suivante :

• 12 logements dans le bâtiment existant

• 8 logements dans les maisons de villes

Les maisons de villes seront implantées en bande à 6.00m autour du bâtiment existant formant un L.  Elles s’aligneront sur la façade du bâtiment existant sur le boulevard Decauville.

Le bâtiment existant a participé à la composition symétrique du bâti de part et d’autre de l’allée Louise Bathilde de Bourdon. Cet ensemble participant à l’empreinte historique de l’ancien château de Petit-Bourg dont il ne reste aujourd’hui que les conciergeries, une partie des communs (occupé aujourd’hui par la résidence étudiante) et les anciennes douves qui marquaient l’entrée de la partie privative du château.

Ces traces aujourd’hui disséminée participent autant à l’empreinte historique de l’ancien édifice qu’à la  composition architecturale marquant le paysage.

De ce constat, et comme cela a été mené sur la partie gauche de l’allée Louise Bathilde de Bourdon, notre projet s’attache à préserver les éléments patrimoniaux mais aussi à les accompagner en redéfinissant leur rapport avec leur environnement à travers leur nouvelle destination.

L’écriture des petites maisons en bande marque notre volonté de construire et composer une hiérarchie. Le bâtiment existant, par sa hauteur et son positionnement central domine les nouvelles constructions plus basses. L’écriture minimale des maisons favorise la lisibilité entre ancien et nouveau et cela à partir de deux éléments : la verticalité affirmée et continue des baies et l’unité dans la nature et la couleur du ravalement des façades.

L’aménagement paysager de la parcelle s’organise en séquences le long de l’axe Ouest-Est, de la plus urbaines à la plus végétalisée :

• Les logements sont bordés au nord par les jardins privatifs, et au sud par un mur à pêches ainsi qu’une allée cavalière. S’insérant entre la limite de propriété au nord et les maisons de villes, les jardins privatifs seront engazonnés et plantés d’arbustes de petites tailles (érables Bloodgood, érables Tropenburg et érables Orange Dream). L’allée cavalière plantée de tilleuls sera quant à elle préservée et restituée dans sa partie centrale par l’ajout de gravier de rivière. De plus un espace vert au sud du bâtiment existant sera, lui aussi, préservé. Il sera délimité de l’allée cavalière par un mur à pêches d’une hauteur de 2m.

• Le parc de stationnement sera traité en béton gazon et la voie de circulation en béton désactivé ou en stabilisé. Une rangé de 7 arbres bordera sur la partie Nord du parc de stationnement.

• A l’arrière de la parcelle se développe un espace vert traité à la façon d’une prairie,  graminées et herbacées seront agrémentées de fleurs