Archives par mot-clé : Thomas Vajda
RSS Athis-Mons (91)
Mis en avant



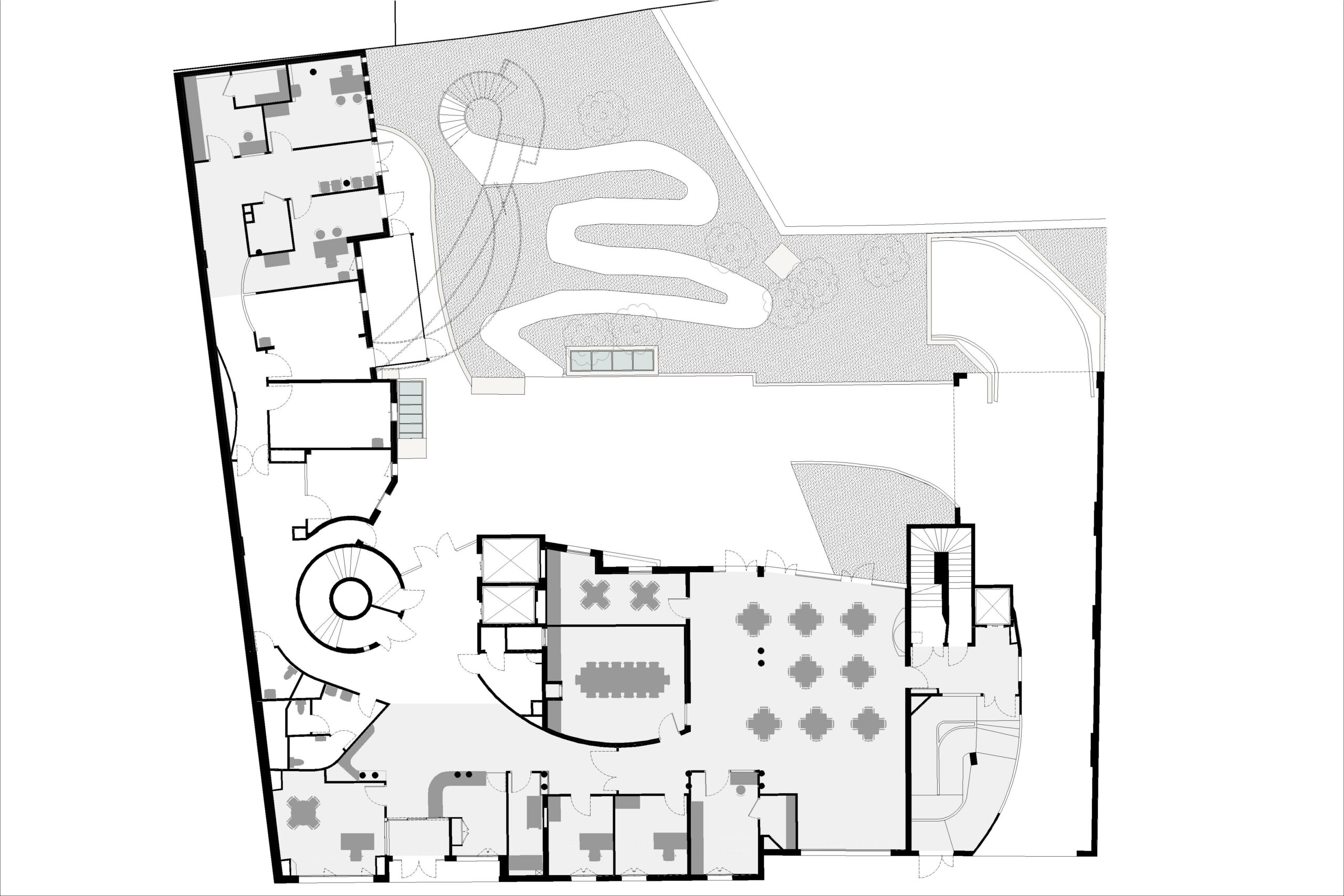
Le projet concerne la transformation de l’ancien Hôpital Privé Caron, son extension le long de la rue Caron en lieu et place de deux pavillons voués à la démolition et du réaménagement d’une maison bourgeoise sur un terrain adjacent situé côté rue d’Ablon.
Compte tenu de la forte déclivité des deux rues le bâtiment se développe sur 7 niveaux.
Le programme consiste à construire un ensemble immobilier comprenant :
une résidence services seniors classée en 3ème famille B collective de 93 logements (le pavillon rue d’Ablon est classé en 2ème famille)
un ensemble de services collectifs situés au RDC bas et destinés exclusivement aux résidents et à leurs invités, à savoir: piscine, restaurant, salle multimédia, bar, salon, gym, coiffure et soins esthétiques,
un parc de stationnement réservé aux résidents en extérieur et/ou sous-sol.
Le principe de départ de ce projet est basé sur la possibilité de conserver la structure de ce bâtiment composite et de lui redonner une unité architecturale qualitative.
Pour ce faire, il a été décidé de déposer les façades existantes sur l’ensemble du bâtiment tant pour pouvoir modeler une nouvelle peau autour du projet mais pour créer son isolation thermique puisqu’elle est inexistante aujourd’hui…
En second lieu, la totalité des éléments en superstructure dont les hauteurs sont supérieures à 0,60 m – adjonctions en périphérie du bâtiment principal – sera démolie.
C’est cette action primitive qui prévaut pour que la qualité de l’écriture architecturale soit mise en évidence.
Les façades seront couvertes d’un enduit ton pierre et les ouvertures seront agrémentées de balcons dont les garde-corps seront composés d’une tôle métallique – RAL 7037 – identique à celle des toitures.
Une main courante, au-dessus de la tôle, finira l’ensemble tout en l’allégeant visuellement.
Les façades du dernier volume rue Caron sera traitée en enduit gratté ton pierre foncée avec traitement en bossages aux angles et corniche en partie supérieure afin de créer une rupture de volume pour diminuer l’impacte de la masse bâtie.
Le bâtiment, au sud du terrain, sur la rue Caron, construit à la place des deux pavillons, sera posé sur un parking enterré.
Une partie de ce parking, sous la bande de retrait des 5 m est surbaissée pour permettre des plantations durables.
L’emprise de ce parking englobera cette bande de retrait et une partie des deux parcelles concernées.
Ce jardin se poursuivra jusqu’au bout du terrain, le long de la montée, en une suite d’espaces verts composites, alternant des couvres sols à fleurs plantés sur des formes de glacis pentus et des plates-bandes.
RSS Braine (02)
Le projet de Résidence Services Seniors s’implante au Nord de l’établissement existant sur la même parcelle. Le bâtiment sera en longueur et marquera l’alignement de la rue Porte de Reims. Pour faire échos aux constructions la route de Brenelle Cordier ou aux bâtiments existants de l’EHPAD, et pour offrir une échelle plus « domestique » au bâtiment, la façade principale sera recoupée en plusieurs « maisons de ville ». La toiture propose ainsi une succession de doubles pentes dont le faitage est perpendiculaire à la rue. Les fenêtres et menuiseries sont aussi à l’échelle de la maison.
Deux teintes permettront de renforcer l’échelle domestique de donner des vibrations et du rythme à la façade. La composition et la colorimétrie des ouvertures de façades accentuera se léger mouvement.
L’insertion architecturale de la RSS se fera également par la forme du bâti. Le bâtiment formera un nouveau jardin intérieur avec l’EHPAD existant côté sud, nord et sud-est. Son intégration est pensée comme la formation d’une « aile » différente de l’EHPAD existant. Une connexion extérieure pourra être imaginée à terme.
Le jardin sera végétalisé et le stationnement hors sol bénéficiera du même soin et traitement paysager.
EHPAD La Fruitière Marseille (13)




Le projet consistée en une rénovation importante de l’E.H.P.A.D LA FRUITIERE. Ainsi, en concertation avec les services compétents en termes d’accessibilité et de sécurité, le projet prévoit notamment :
La remise aux normes d’accessibilité de l’ensemble de l’établissement, et notamment de toutes les chambres en ce comprises les salles d’eau (réfection des sols, murs et plafonds, relamping et remplacement des appareils sanitaires),
La réouverture des deux chambres désaffectées afin de réduire le nombre total de chambres doubles,
L’agrandissement de certaines chambres par la redistribution du cloisonnement, notamment en utilisant de locaux adjacents lorsque cela était possible
La mise en place d’un système réversible assurant le rafraîchissement et le chauffage dans chacune des chambres.
Dans les espaces communs :
La réfection des circulations (murs, faux-plafonds et éclairage conforme) de tous les étages,
La création d’un sanitaire spacieux et accessible à proximité de la salle à manger en lieu et place d’une salle de bains collective non utilisée,
Création de nouveaux vestiaires (avec salle de douche, wc et système de rafraîchissement) au R+1,
Création d’une salle de repos / repas (comprenant notamment un système de rafraîchissement) au R+1.
La création d’un véritable salon d’accueil au rez-de-chaussée, et l’installation d’une banque d’accueil accessible aux personnes à mobilité réduite,
La création de locaux dédiés au linge sale et au linge propre dans les étages, en relais de la buanderie située au Rez-de-chaussée,
Le projet s’accompagné également d’une réflexion importante sur les extérieurs. Les espaces seront ainsi plus lisibles :
Réfection de la voie d’accès et du parking,
Remise en fonctionnement du portail sur rue avec mise en place d’une visiophonie,
Aménagement d’un emplacement de stationnement à proximité de l’entrée avec création d’un cheminement accessible jusqu’à l’entrée de la résidence,
Nettoyage et ravalement des façades et des murs de clôture,
Réfection de l’étanchéité de la toiture terrasse et pose d’une ligne de vie facilitant l’entretien de cette dernière,
Remise en état du jardin : nettoyage, élagage – taille des arbres et arbustes – suppression des rejets.
Les jardins de Montmartre – PARIS (75)
Les travaux envisagés consistent à déplacer la cuisine collective du rez-de-chaussée au sous-sol, restructurer le pôle administratif et aménager un salon et salle de réunion en lieu et place de l’ancienne cuisine collective située à rez-de-chaussée ainsi que l’aménagement de locaux de stockage au sous-sol de son établissement
Clinique Turin Paris (08)
HAM (80)
Le projet consiste en une nouvelle construction en structure métallique modulaire destinée au stockage des emballages neufs vides.
L’accès depuis la voirie interne au site, est également créé pour permettre le déchargement et la manutention dans le bâtiment et fluidifier la circulation intérieure pour le reste du site.
La structure modulaire en acier a été choisie pour la rapidité du montage et pour sa qualité structurelle exigée par la réglementation incendie.
Les façades et la toiture sont en métal thermolaqué RAL 9006 et RAL 9007, un aspect aluminium, qui aura l’avantage de se confondre avec le ciel dégagé de la plaine.
La périphérie du bâtiment sera aménagée sur trois côtés par un revêtement perméable en sol stabilisé compacté.
EHPAD Asnières-sur-Seine (92)
Mis en avant







Ce programme s’inscrit pleinement dans les préoccupations actuelles de notre agence. Nous souhaitons concevoir une architecture simple, d’une grande rigueur constructive qui se traduirait par des bâtiments exemplaires en terme de qualité d’usage et de développement durable. S’intégrant dans le tissu urbain très dense d’une commune qui compte près de 17 000 habitants/km², l’EHPAD est conçu comme un bâtiment compact. Les deux unités Alzheimer / UPPD sont réparties ainsi: une au rez-de-chaussée (10 lits), l’autre au 6e étage (15 lits). La volumétrie facilite le lien avec les typologies urbaines environnantes. Le bois, deuxième peau chaleureuse, filtre le regard et la lumière. Le contrôle des apports solaires se fait par les brise-soleil. Les balcons, accessibles depuis les chambres, constituent un prolongement agréable de l’espace de vie, tout comme la terrasse située au dernier étage qui donne à voir le paysage du Grand Paris.
EHPAD « Les Jardins de Sainte Baume » Nans-les-Pins (83)
Le projet consiste en :
Une première extension de 8 chambres EHPAD au Sud-Ouest, une deuxième extension au Nord-Est (Résidence Services Seniors) de 20 appartements T1Bis, l’aménagement d’un parking face à l’aile RSS et la démolition d’un bâtiment annexe l’Ouest de l’EHPAD.
Le bâtiment existant accueillant l’EHPAD est composé de 2 ailes principales en RDJ/RDC et R+1 formant un S. Le volume EST en RDC est constitué principalement de l’accueil, de bureaux pour le personnel et de la salle de restaurant des résidents. Le volume OUEST accueille des chambres.
Le cœur du bâtiment est composé d’un patio.
L’extension de 8 chambres se développe sur 2 niveaux et vient dans le prolongement de l’EHPAD. Elle reprend pour les teintes et matériaux de la construction à laquelle elle se lie) : enduit blanc et bardage bois. L’extension est en toiture terrasse et disposera de garde-corps. Les groupes de climatisation seront implantés en toiture et pourvus d’un bardage acoustique d’une hauteur de 180cm.
L’extension en RSS s’effectue depuis le hall d’accueil actuel en RDC et se développe sur forme de L sur la partie Nord-Est du terrain en RDC et R+1. Elle reprend les teintes et matériaux du bâtiment principal d’origine : enduit ton terre (jaune orangé) Les enduits existants et menuiseries abimés seront repris. L’ensemble des constructions sera donc homogène dans son traitement des façades. L’extension RSS est composée principalement de toiture en pente comme l’EHPAD existant. Les débords de toitures en tuiles seront constitués par des rang de génoises en tuile canal
Les bâtiments sont implantés dans un site au paysage déjà remarquable, le projet de plantations aura pour objectif d’intervenir ponctuellment », soit en cicatrisant les surfaces impactées par les constructions soit en introduisant des compositions pour le confort et l’agrément des résidents.
Les aires de stationnement seront ombragées par des tilleuls ou des érables champêtres, permettant d’identifier l’aire et de mieux se repérer dans le site. Des haies arbustives seront composées avec un mélange d’essences champêtres majoritairement indigènes afin d’atténuer leur impact visuel depuis les chambres. Ces arbustes auront pour caractère commun d’attirer les oiseaux ou les papillons, contribuant ainsi à l’animation et la biodiversité.
Au cœur même de l’Ehpad existant, un patio actuellement délaissé sera aménagé.
Toute la partie ouest du terrain sera laissé en l’état avec son boisement de pins et de chênes.
Au total, le projet paysager assurera l’insertion des nouveaux bâtiments dans un cadre végétal contribuant ainsi au confort des futurs résidents.
La palette végétale mise en place sera volontairement limitée et sobre, de manière à la fois à donner de l’homogénéité au paysage et à garantir un entretien facile. Elle sera largement basée sur des végétaux déjà présents. Les végétaux utilisés auront de faibles besoins en eau.
L’ensemble de ces intégrations végétales contribuera largement à accroître le patrimoine végétal existant, en jouant sur plusieurs strates : arborée, arbustive et herbacée.
EHPAD Marcadet (75)
Mis en avant











L’édifice actuel depuis sa construction et son extension a toujours été exploité comme établissement de santé. Il est dans le cadre du projet transformé en EHPAD (Etablissement Hébergeant des Personnes Agées Dépendantes) pouvant accueillir 95 résidents. Il est constitué d’un R+2 partiel construit sur un niveau de sous-sol le tout s’organisant autour d’une cour.
Ce bâtiment est classé par la ville de Paris comme Bâtiment Remarquable.
Ainsi il est prévu de restructurer et de surélever l’ensemble de l’édifice existant.
Pour ce faire les dispositions suivantes seront respectées :
– la conservation de l’ensemble de façades
– la conservation du niveau existant de la cour
– la mise en retrait d’une partie de la surélévation côté rue, afin de conserver « l’effet de dent creuse » retenu comme principe par la Commission du Vieux Paris.
Une écriture à la fois rythmique et rigoureuse de toutes les surélévations est la réponse apportée au langage architecturale de l’édifice existant.
Les surélévations sur la rue se font en deux séquences ; la première s’appuie sur l’entablement du bâtiment au premier étage avec un léger retrait, la seconde très marquée au quatrième étage participe à l’effet de « dent creuse » de cette parcelle.
Sur la cour l’écriture se poursuit, les retraits se conforment aux règles de prospect. La légère variation produite par le désaxement de la superposition des ouvertures accompagne la rythmique rigoureuse de la structure signifiée en façade par la trame régulière de poteaux. Cette écriture rythmée de l’extension est à la fois respectueuse de ce qui lui préexiste et prolonge, sans la caricaturer, l’architecture Art Déco de l’existant.
Cette trame est interrompue tous les deux niveaux par une fine corniche dans le respect et en adéquation des proportions de la façade existante.































